Проект компактного одноэтажного дома 52 кв м.
Разработан 2024 год
Площадь дома 52 м2
Площадь застройки - 92 м2
Площадь дома 52 м2
Площадь застройки - 92 м2
Скачать проект
11.29 Мб
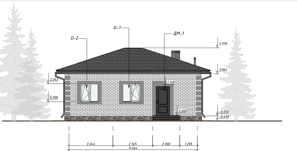
Проект компактного одноэтажного дома площадью 52 квадратных метра включает в себя функциональное планирование, которое обеспечит максимально эффективное использование пространства.
Недорогой вариант дома. Дом по площади как двухкомнатная квартира,но с большой верандой. Простота конструкции и грамотное планирование.
Небольшая площадь дома обусловлена стоимостью строительства. Такой дом можно построить в течении одного сезона.

