Проект одноэтажного дома 95 кв метров
Разработан 2024 год
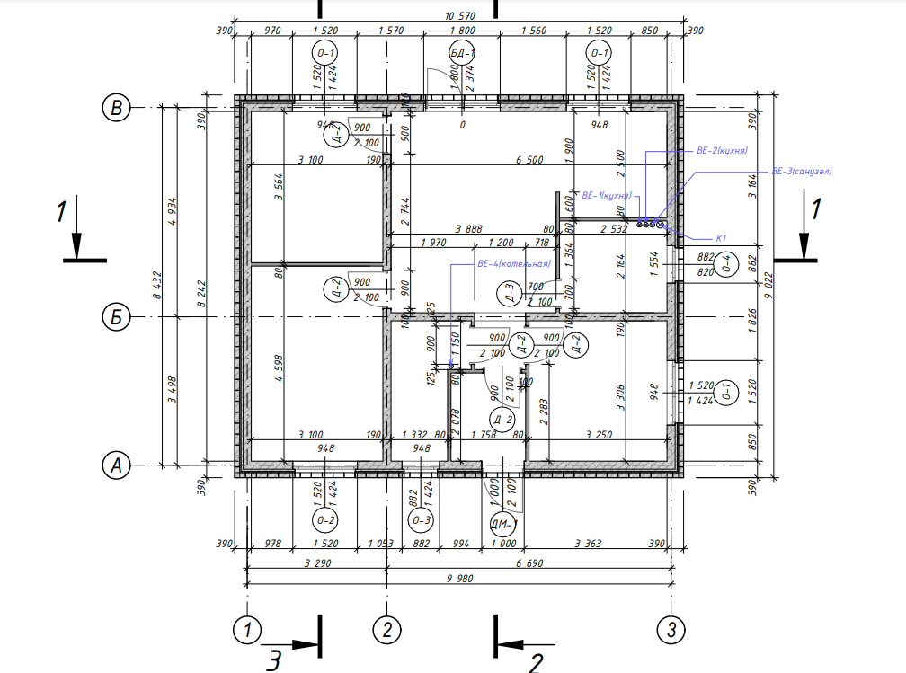
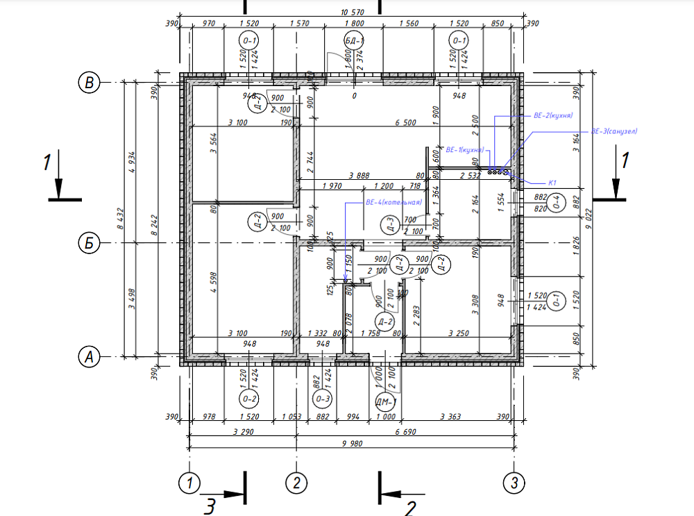
Площадь дома 61 м2
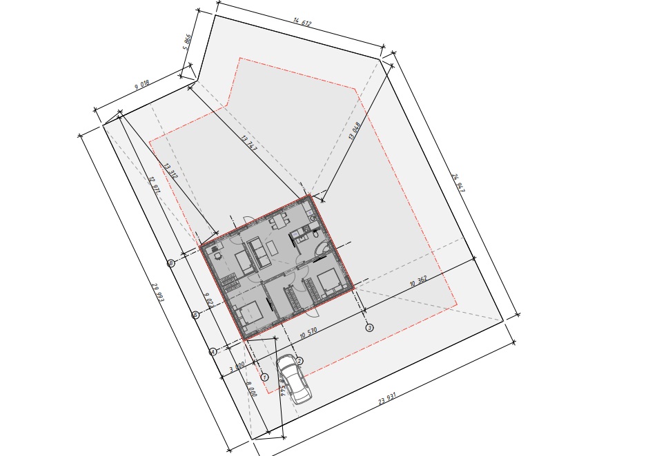
Площадь застройки - 95 м2
Площадь дома 61 м2
Площадь застройки - 95 м2
Скачать проект
2.59 Мб
Проект одноэтажного дома площадью 95 квадратных метров может быть очень разнообразным по своему дизайну, планировке и функциональности.
Основные характеристики
- Площадь: 95 м²
- Этажность: 1
- Количество комнат: 3 и большая кухня-гостиная
- Стиль: современный или классический, в зависимости от предпочтений.
Дома площадью 95 квадратных метров — это отличное решение для комфортной жизни небольшой семьи. Просторные и функциональные комнаты, разумная планировка и возможность выбрать стилистику отделки делают этот дом идеальным местом для проживания. Такой проект может быть адаптирован под индивидуальные пожелания и финансы будущих жильцов, что существенно увеличивает его привлекательность.
Стены дома выполнены из керамзито-бетоннох блоков и обложены облицовочным кирпичем.

